An immaculate and beautifully presented detached family residence
An exceptional opportunity to acquire a beautifully presented detached family residence, built by Jones Homes to an upgraded specification. Additionally, the owners have re-fitted the property throughout with quality engineered oak flooring. The property enjoys the conservatory to the rear and the garage has been converted into an office/studio as well. The property benefits from ample car parking space. An early inspection is highly recommended.
The property is set in the popular Wealden village of Marden with its range of local shopping facilities including village stores, butchers, bakers, post office, petrol station and shop. There is an excellent primary school in the village and the mainline station offers commuter services to London Charing Cross and Cannon Street (approximately 50 minutes). The County Town of Maidstone is approximately 8 miles away providing a wider range of both leisure and shopping facilities.
The accommodation comprises:
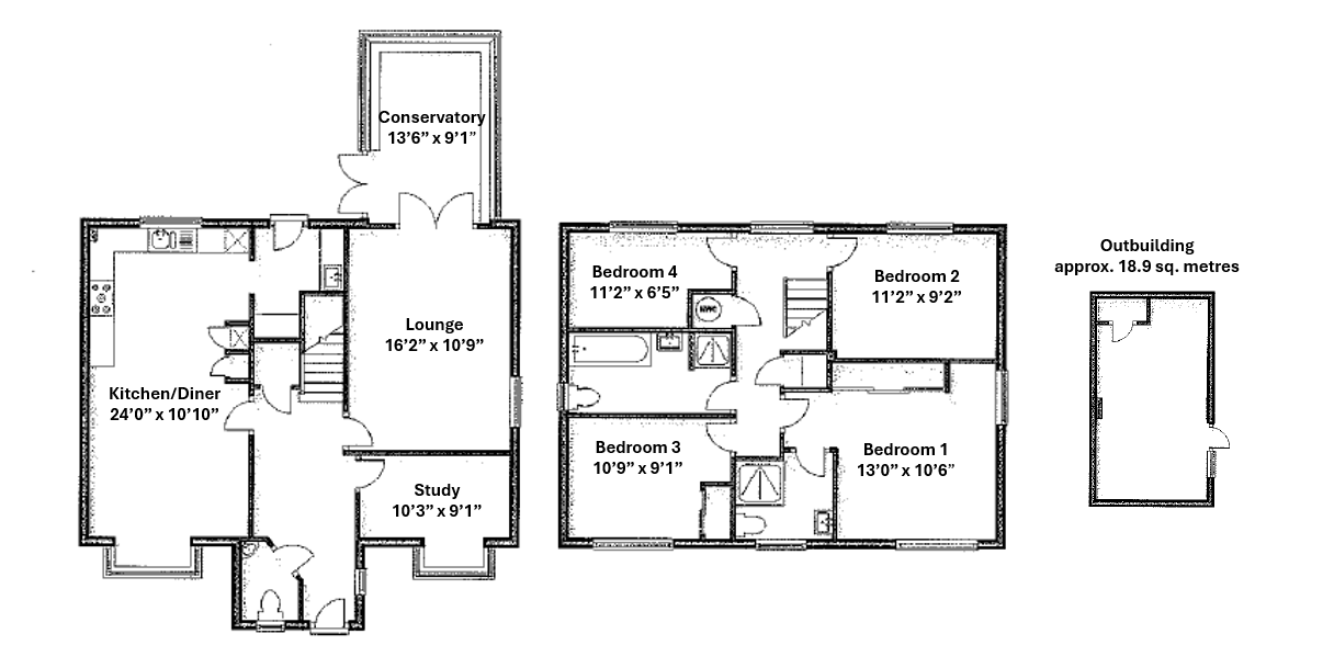
RECEPTION HALL
Replacement front door. Panelled radiator. Useful understairs cupboard.
Engineered Oak strip flooring (which continues throughout the house).
CLOAK ROOM
Window to front. WC. Corner hand-wash basin. Power radiator.
Part-tiled walls.
LOUNGE
French doors opening directly onto conservatory. Window to side.
Two panelled radiators.
STUDY
Bay window to front with shutters. Panelled radiator.
CONSERVATORY
Double doubles opening onto garden. Panelled radiator.
KITCHEN/DINING ROOM
Dining Area:
Bay window to front with shutters. Two panelled radiators.
Kitchen Area:
Fitted out with quality base and eye-level units with skirting lighting.
Window to rear with shutters. Fitted out with granite work top surfaces
with Insent 1.5 bowl sink unit with hot tap. Recently installed AEG induction hob with extractor hood over. Neff double oven. Integrated dishwasher and fridge-freezer. Cupboard Housing gas-fired boiler serving domestic hot water and central heating. Door through to:
UTILITY ROOM
Window to side. Worktop with single drain sink unit. Plumbing for automatic washing machine. Panelled radiator. Inbuilt shelving.
STAIRCASE
Engineered Oak treads leading to galleried landing area with window to rear. Panelled radiator. Airing cupboard. Additional storage cupboard.
MASTER BEDROOM
Double aspect. Panelled radiator. Built in range of triple wardrobe cupboards with mirrored faces.
ENSUITE
Well presented with marble effect tiled flooring. Shower cubicle. WC suite. Hand wash basin. Chrome heated towel rail. Wall cupboard with mirror/light.
BEDROOM 2
Window to front. Panelled radiator. Fitted double wardrobe. Cupboard with mirrored doors.
BEDROOM 3
Window to rear. Panelled radiator. Currently fitted out as dressing room area.
BEDROOM 4
Window to rear with shutters. Panelled radiator.
FAMILY BATHROOM
Panelled bath. Separate shower cubicle. Pedestal hand wash basin. WC suite. Tiled flooring and walls. Window to side. Chrome heated towel rail. Cabinet with mirror/light.
OUTSIDE
The property enjoys an area of brick-paved driveway and turning area with access to further car parking space in front of the garage/office room. Electric car charging point. The frontage enjoys an area of established shrubs and small trees and an area of lawn. The rear garden
enjoys a paved terrace area nicely secluded, the remaining garden laid mainly to lawn with established hedges and herbaceous borders. Useful storage cupboard to side. The former garage has been converted to an office/studio currently used as a gymnasium.
Read less